top of page

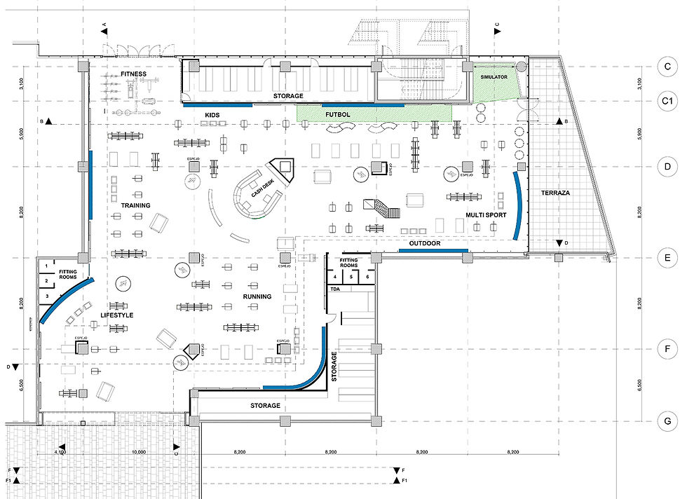
Intersport

1400 mt2

 

Mall Plaza Los Dominicos

2016-17

Construido

 

 

bottom of page